Einfamilienwohnhaus in Wiesenbach

Projektierung 2007 Einfamilienwohnhaus in Wiesenbach Das Grundstück befindet sich am Ortsrand von Wiesenbach. Das Gelände wurde als Erweiterung zum nahen Ortskern als neues Baugebiet ausgewiesen. Der Zugang erfolgt über eine Stichstraße. Ein kostengünstiges Eigenheim für eine junge Familie sollte entstehen. […]

Projektierung 2007

Einfamilienwohnhaus in Wiesenbach


Das Grundstück befindet sich am Ortsrand von Wiesenbach. Das Gelände wurde als Erweiterung zum nahen Ortskern als neues Baugebiet ausgewiesen. Der Zugang erfolgt über eine Stichstraße.

Ein kostengünstiges Eigenheim für eine junge Familie sollte entstehen.

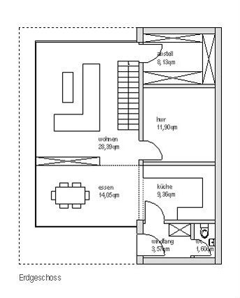
Der Baukörper besteht aus einem eingeschossigen gläsernen Kubus, der schützend von einem opaken Bügel umfasst wird. Dieser schottet das Gebäude zum Nachbarn nach Nordosten ab. Der geschützte Glaskubus öffnet sich gänzlich zum Garten – in ihm ist der Ess- und Wohnbereich untergebracht. Im Erdgeschoss sind außerdem HWR, HAR, Küche und ein Gäste-WC vorgesehen. Das Obergeschoss beinhaltet Schlaf- und Arbeitsräume nebst Bädern.






Recent Portfolios