Einfamilienwohnhaus in Birkenau

Projektierung 2008 Einfamilienwohnhaus in Birkenau Das knapp 400qm große Grundstück in Birkenau liegt an einem Südhang mit wunderschönem Ausblick auf den Odenwald und auf die Wachenburg in Weinheim. Das Raumprogramm des Passivhauses beinhaltet außer einem EFH noch erdgeschossige Lagerflächen für […]

Projektierung 2008

Einfamilienwohnhaus in Birkenau


Das knapp 400qm große Grundstück in Birkenau liegt an einem Südhang mit wunderschönem Ausblick auf den Odenwald und auf die Wachenburg in Weinheim.

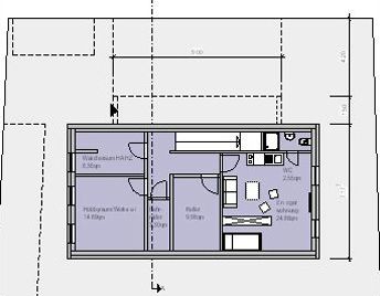
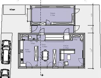
Das Raumprogramm des Passivhauses beinhaltet außer einem EFH noch erdgeschossige Lagerflächen für das eigene Licht- und Tontechnikunternehmen, welche in einem eigenen Baukörper an der Nordgrenze vorgesehen sind. Zwischen Nebengebäude und Haupthaus erfolgt die Erschließung. Das Haupthaus als langgestreckter Riegel ermöglicht die Orientierung aller Wohnräume nach Süden als Grundlage des gewünschten Passivhausstandards. Vorsprünge nach Westen und Süden sowie zwei lange Fensterbänder betonen die horizontale Ausrichtung des Gebäudes.






Recent Portfolios