Anbau an ein bestehendes Einfamilienhaus in Bürstadt

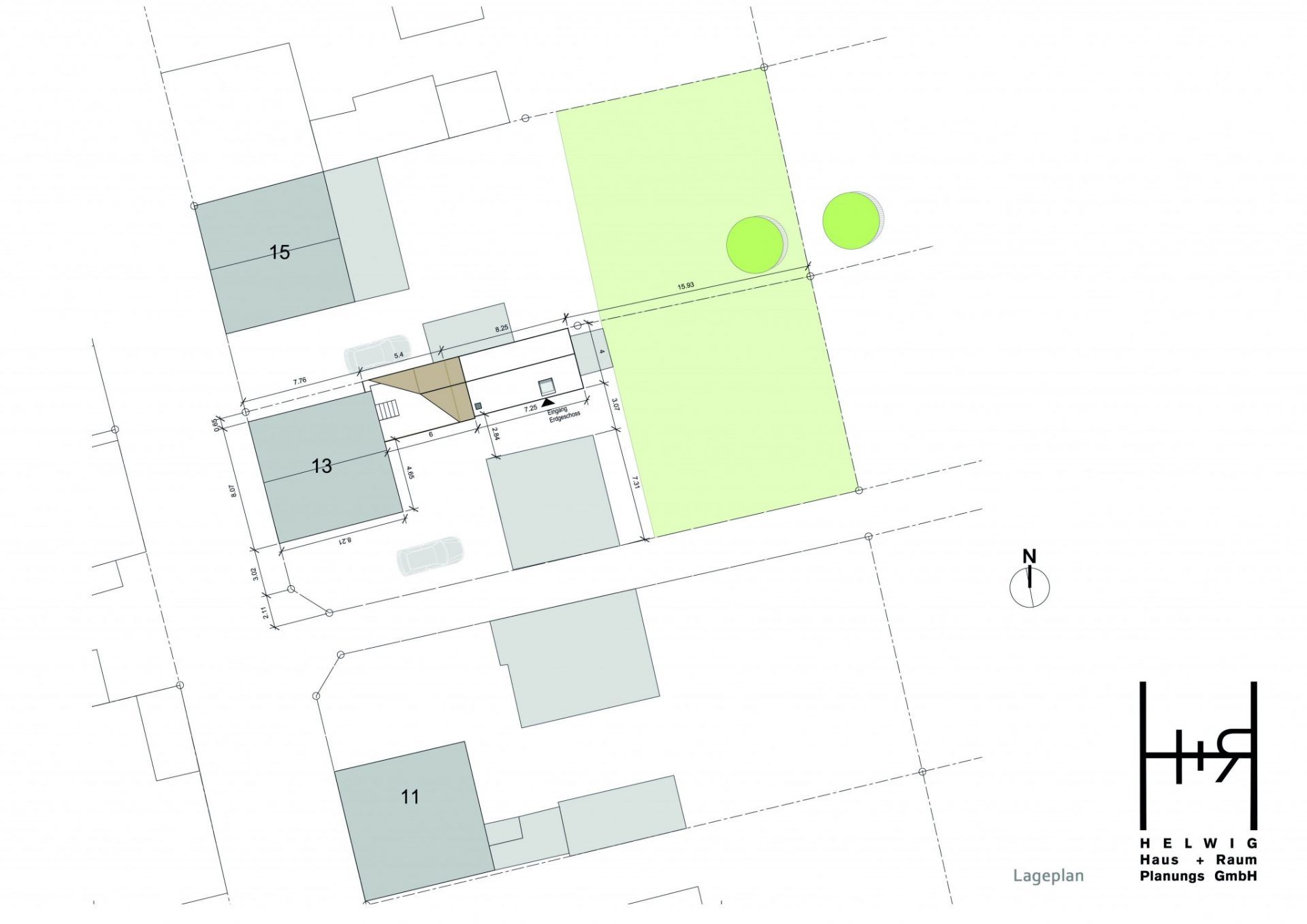
Projektierung 2015 Anbau an ein bestehendes Einfamilienhaus Für ein bestehendes Einfamilienhaus wurde ein Anbau projektiert, der Raum für ein repräsentatives Esszimmer mit Lounge und Kamin sowie eine Bibliothek und eine Dachterrasse bietet.

Projektierung 2015

Anbau an ein bestehendes Einfamilienhaus


Für ein bestehendes Einfamilienhaus wurde ein Anbau projektiert, der Raum für ein repräsentatives Esszimmer mit Lounge und Kamin sowie eine Bibliothek und eine Dachterrasse bietet.






Recent Portfolios